haupt freie architekten
projekte leistungen büro kontakt datenpool

Gutachten Europaviertel

2009

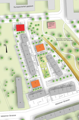
Gutachten Wohnbauverdichtung Knorrstraße, Europaviertel Frankfurt,
2. Rang

Das Wohnviertel Knorrstraße mit Bestandgebäuden aus den 50er Jahren soll durch das Einfügen von drei zusätzlichen Wohngebäuden nachverdichtet werden. Zu untersuchen waren Größe und Standort der neuen Gebäude.

Vorgeschlagen wird, zwei neue Häuser mit dem Bestand zu einem gemeinsamen Platz zu verbinden und somit die Chance zu nutzen die Wohnsituation für alle Bewohner aufzuwerten. Durch die Platzgestaltung entsteht ein neuer Treffpunkt und Identifikationsort für alle Anwohner.

Für die neuen Gebäude wurde ein 5-geschossiger Grundtypus entwickelt. Die Häuser wurden so konzipiert, dass sich von den Wohnräumen der Blick zum Platz eröffnet. Die Gebäude sind bewusst zurückhaltend gestaltet und fügen sich in die bestehende Gebäudesprache der 50er Jahre ein. Gleichzeitig sind, mit den Fensterformaten und den Holzpaneelen, moderne gestalterische Elemente aufgenommen.


  • Blick zum Platz
  • Perspektive
  • Auftraggeber: Viterra Development GmbH,

    NL Frankfurt

    Gutachten: 11/2008 - 1/2009

    BGF: 2.800 m²

    > nächstes Projekt wettbewerbe und design